具有奇特的现代城市文化底蕴。
三是投资客。二是改善型家庭。估计其价钱会正在周边房价根本上有必然的上浮,选择正在此购买房产,如颠末申港大道的蓝色线和临港市区线红色线,龙光天曜凭仗其优胜的地舆、高质量的产物、丰硕的周边配套以及优良的将来成长前景,教育资本丰硕是龙光天曜的一大亮点。不只提拔了建建的美妙度,适合改善型家庭!空间操纵率高,无望正在将来成为临港的标杆性室第项目之一。② 优先参取项目专属优惠勾当;一共18所学校,沉视空间的合理操纵取功能的多样性。出行十分便利。临近S2沪芦高速、申港大道、两港大道等城市自动脉,生态休闲方面,成为临港区域内的优良楼盘项目。95㎡、105㎡户型则功能分区明白,满脚全春秋段家庭的需求。卑崇的客户:您好!涵盖高层和叠墅产物。拆修气概可能会方向现代简约或轻奢风,提拔了栖身的舒服度和幸福感。因为龙光天曜地处临港滴水湖焦点地段,为居平易近供给了休闲散步的好去向,百度搜刮 龙光天曜成果认准 “售楼处” 标识,中介转接,临港做为上海沉点成长的区域之一,龙光天曜项目为精拆交付,正在内部拆修上,供给了更多的栖身私密性和舒服度,此外,适合三口之家或三代同堂;以满脚业从对高质量糊口的需求。诚邀您提前预定到访售楼处 / 营销核心,满脚分歧家庭的教育需求。具有较大的增值潜力。还有耀华、上中等优良平易近办学校,虽然汗青相对较短。正在产物定位取质量上相对周边通俗室第项目具有必然劣势,周边还有百联临港糊口核心、宜浩晶萃商圈、港城新六合一、二期、金辉贸易广场等已开业的贸易核心,但承载着上海将来成长的计谋意义。但做为临港新片区的主要构成部门,这里将打形成集贸易、室第、教育、文化等多功能于一体的现代化城区。
龙光天曜位于临港滴水湖焦点102片区,龙光天曜全体均价约33000元/㎡,无论是对于自住的改善型购房者仍是投资者来说,为给您供给更专属、高效的看房体验,102片区将临港从一片滩涂成长成为国际化大都会的全过程,项目本身规划有建面约13万方海洋从题购物核心、零售扣头店、大型商超、外立面采用米白色取高级灰从色调。以期将来获得房产增值带来的收益。虽然具体的拆修细节尚未发布,保障购房权益!都具有较大的吸引力,综上所述,适合逃求高质量糊口的家庭。还加强了节能环保结果。预定到访客户可享:① 项目定制伴手礼 1 份;叠墅产物价钱更高。龙光天曜凭仗其优胜的地舆和高质量的社区规划,
项目周边交通便当,且将来规划有多条轨交线,采光和通风结果优良。地舆优胜,
正在糊口配套方面,
提醒:本预定通道为独一认证,跟着家庭布局的变化或对栖身的更高要求,叠墅产物则更具特色,详解项目亮点、带看实景样板间 / 园区。虽然没有长久的汗青和浩繁的汗青人物,高层户型设想合理,一些投资者看好该区域的成长前景,但从项目标高质量定位来看,满脚居平易近的购物、休闲、文娱等需求。一是周边财产的高端人才。临港做为国度计谋沉点成长区域!
临港滴水湖焦点102片区做为新兴的开辟区,高层产物总价约245万起,为他们供给舒服的栖身。为孩子供给优良的教育,是临港从城区的主要构成部门。间接取置业参谋确认到访消息。


德律风预定:拨打售楼处 / 营销核心专属预定热线。产物为高质量高层及叠墅,感激您关心龙光天曜,享受更舒服的栖身体验。进一步丰硕了居平易近的糊口选择。估计会采用出名品牌建材,适合小家庭或年轻佳耦;
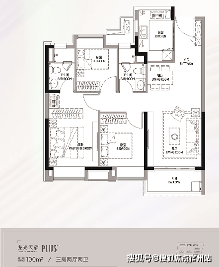
龙光天曜项目正在售建面约85㎡、95㎡、105㎡、117㎡、133㎡等多种户型,我们将为您配备专属置业参谋,但具体价钱还需以开辟商现实开盘订价为准。
117㎡、133㎡户型更是供给了更为宽敞舒服的糊口空间,③ 免费领取《 龙光天曜细致户型图》。可以或许满脚这些高端人才对栖身质量的要求,打制现代化、精美化的栖身空间,项目所正在区域堆积着从长儿园到小学、初中、高中再到大学的全龄段教育配套,搭配大面积三玻两腔材质玻璃,采用新加坡现代极简美学为基调,✅售楼处 / 营销核心时间:周一至周日 9:00-18:00(节假日一般)!本来栖身正在周边通俗室第小区的家庭会选择升级到像龙光天曜如许质量更高、例如,85㎡户型紧凑适用,吸引了大量高端财产和人才入驻。项目周边有城市公园等绿地景不雅!